2019-06-14 1088
项目名称:铭.纪
项目地点:景泰翰林F区
设计及施工机构:弘艺装饰有限公司
设计师:刘义
施工项目建筑面积:137平米
施工涉及材料:瓷砖 、墙漆、原木家具、板材定制、中式花格
工程造价:127600
业主信息:屋主是事业有成的成功人士,故整体格调以新中式,选择了深色原木的实木家具作为家里的大部分家具用材,显得沉稳又不失格调。
业主小故事:一个五口之家,老人和蔼可亲,男女主人事业已达到所属的位置,女儿有自己挺不错的工作,其他没有更高的追求,唯独是居所没有自己的所属,故而相识亲力亲为为其打造属于自己的古朴归属空间。
设计理念:单纯的风格在今后的装修中会进一步弱化,健康自然将成为恒久的主题,在室内设计中拾起儿时的记忆、曾经的激情,用人文的关怀去展现特有的生活艺术、民俗文化,自然的材质、色彩及造型来表达人们生活的概念,力的去诠释、挖掘人们生活的内涵。
案 例
新中式风格是设计师对传统文化的再设计,对中式风韵的现代演绎。它以简约内敛、精致古典的独特魅力,将经典融入生活,传递空间力量。家在中国人眼中不仅仅是一个住所,一个简单生活的地方,家更是一个心的归宿,是流躺在血脉里的深沉情愫。新中式正是赋予人更多精神需求的风格。新中式“新”在跳脱传统与大胆创作,更加的契合于现代人的审美与需求。

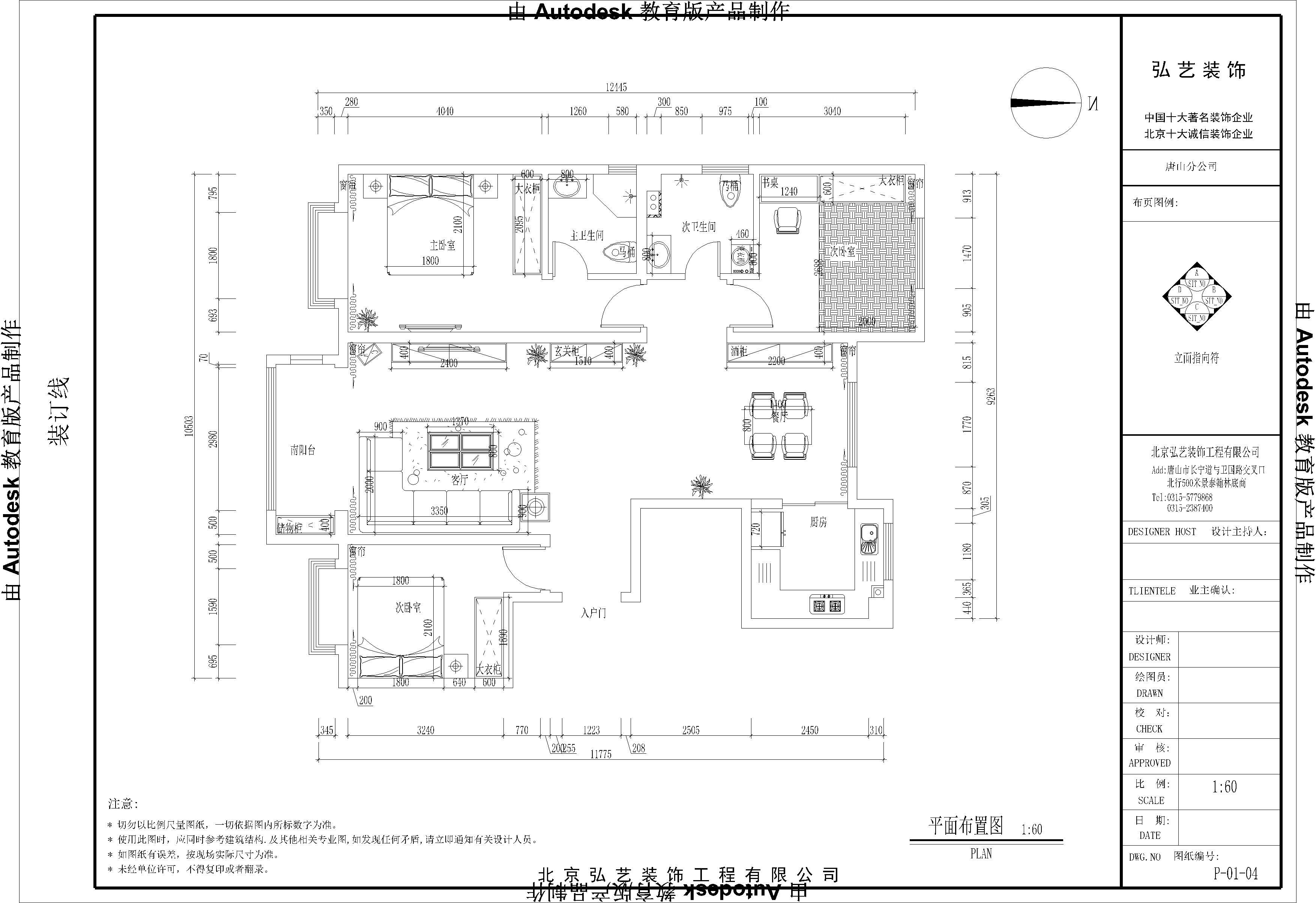
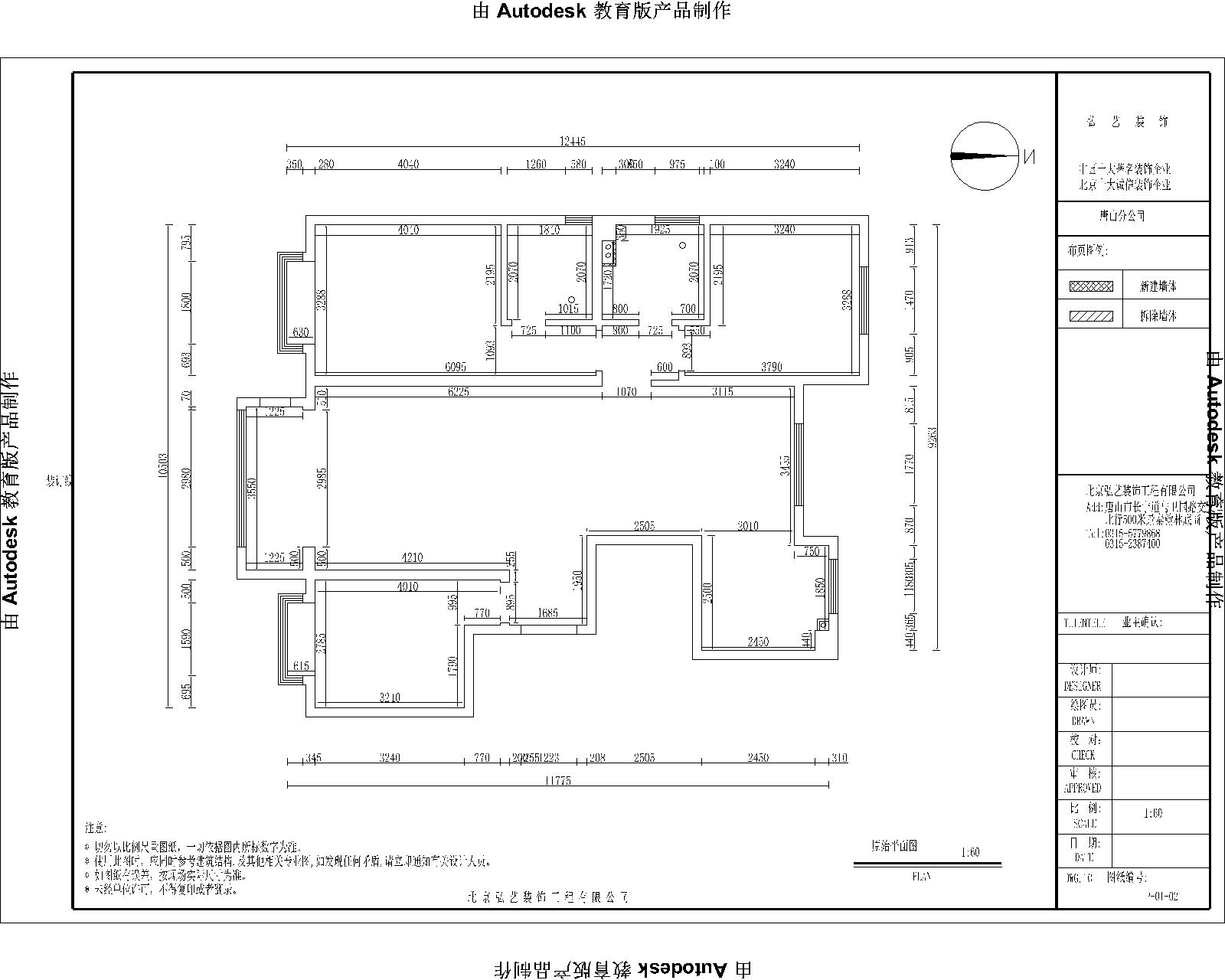
此户型为原始的平面图,属于三室室两厅的南北通透的常见户型,简约布局没有太大格局变动,主卧、次卧相邻而坐,厨房、卫生间的格局也比较明朗。

上图为户型的平面的布局图进门因为空间太小没有办法放置鞋柜因而放到转交的位置,充分的利用空间跟衣帽间结合一起,因厨房空间使用正合适,相邻的是餐厅酒柜增加储物量,次、主卧室属于正常放置衣柜床,客厅三座沙发,餐厅居中放置餐桌。厨卫空间根据下水及功能放置使用。

客厅的整个色调分为三个部分,一是墙面的暖灰色,低调中又带点清新,二是吊灯的暖白色,干净大气,三是地砖上的暖色,三个颜色形成三个大色块。
地面拼花的造型丰富了整个空间的律动性。电视背景墙面的无风格的处理恰到好处,中间木棉花壁画的处理彰显大气,配合新中式的风格容入性很强。

沙发背景墙的黑框实木线条的勾勒, 配上大气简约的装饰画相得益彰。再搭配古朴的中式家具,把中式打造的跟家玲离尽致

新中式清透、内敛、极致,游走黑白之间,没有黑的刚硬也无白的纯粹带着幽幽的意境之美。东方的水墨写意和着现代的简约利落,在诉求着同样的精神,除却繁冗唯有禅意风骨和智慧空间。
新中式不仅俘获了众多家居爱好者的心,令人一见钟情,新中式风格还是东方美学的进化论,是情结,更是情怀。我们可以看到艳丽的雕塑在碧水蓝天间歌舞;可以看见传统的山水园林悄然在大堂里彰显;可以看见“山”、“水”造型的艺术装置和灯具在空间肆意的游走......零零总总,让人心生羡慕。
